Baie coulissant


- caractéristiques .
général
Système coulissant multirails de 87 mm avec barrière thermique. esthétique Des lignes droites.
thermique
Transmission thermique interrompue par des barres en polyamide PA66 « Technoform » de 24 mm avec 25 % de fibres de verre joint Étanchéité par peluche tri-fin, et brise-vent à l'intersection des feuilles. . - types d'affichage . périmètre Les fenêtres périmétriques sont celles dont le cadre fixe et les cadres mobiles sont joints ensemble à des angles de 45º, leurs largeurs et hauteurs étant formées par les mêmes profils. Vue réduite Une vue réduite est considérée lorsque les profils du châssis central d'une fenêtre ont une face plus petite que celle des autres profils du vantail, minimisant la vue des profils dans la division des vantaux. -
types d'ouverture
. courir Les fenêtres à 2 ou plusieurs vantaux coulissants alignés sont considérées comme des fenêtres coulissantes, c'est-à-dire qu'elles s'ouvrent en coulissant le long de la travée. Galandage Galandage est le terme français utilisé pour désigner un système coulissant où les vantaux, une fois ouverts, glissent vers l'intérieur du mur, laissant l'espace complètement ouvert.
Multi slide B.055
- caractéristiques .
général
Système coulissant multirails de 87 mm avec barrière thermique. esthétique Des lignes droites.
thermique
Transmission thermique interrompue par des barres en polyamide PA66 « Technoform » de 24 mm avec 25 % de fibres de verre joint Étanchéité par peluche tri-fin, et brise-vent à l'intersection des feuilles. . - types d'affichage . périmètre Les fenêtres périmétriques sont celles dont le cadre fixe et les cadres mobiles sont joints ensemble à des angles de 45º, leurs largeurs et hauteurs étant formées par les mêmes profils. Vue réduite Une vue réduite est considérée lorsque les profils du châssis central d'une fenêtre ont une face plus petite que celle des autres profils du vantail, minimisant la vue des profils dans la division des vantaux. -
types d'ouverture
. courir Les fenêtres à 2 ou plusieurs vantaux coulissants alignés sont considérées comme des fenêtres coulissantes, c'est-à-dire qu'elles s'ouvrent en coulissant le long de la travée. Galandage Galandage est le terme français utilisé pour désigner un système coulissant où les vantaux, une fois ouverts, glissent vers l'intérieur du mur, laissant l'espace complètement ouvert.



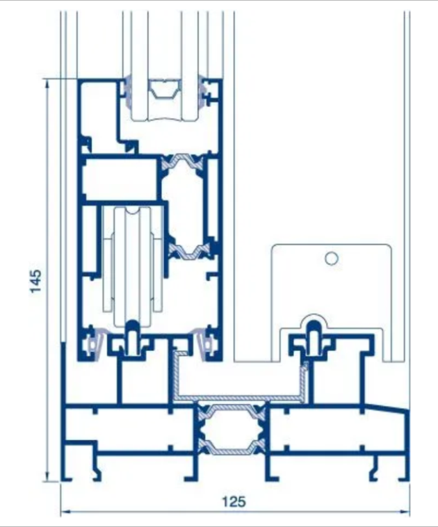
Solid lift Domo 125
- caractéristiques
- .général
- Système coulissant et relevable mono, bi et tri-rail de 125 mm avec barrière thermique.
- esthétique
- Lignes droites.
- thermiques
- Transmission thermique interrompue par des barres en polyamide PA66 de 24 mm avec 25% de fibre de verre.
- scellage
- Etanchéité par peluche stopfine, et brise-vent à l'intersection des vantaux en version coulissante et joints EPDM en version relevable.